Skip to main content
ホーム
お知らせ
会社概要
物件情報
売土地一覧
売家情報一覧
売マンション一覧
お客様の声
無料相談・お問合せ
相場はいくら?
ホーム
お知らせ
会社概要
物件情報
お客様の声
無料相談・お問合せ
相場はいくら?
売家一覧
Housing information
売家一覧
Housing information
物件種別
新築
物件番号
5050
所在地
名古屋市北区柳原1丁目
学区
清水小学校/八王子中学校
交通
名鉄瀬戸線「東大手」駅歩5分
価格
4,799万円
土地面積(㎡)
71.24㎡
土地面積(坪)
21.55坪
建物面積(㎡)
127.52㎡
建物面積(坪)
38.57坪
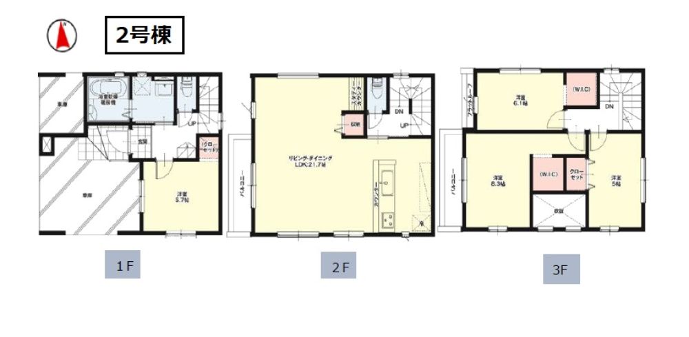
間取り
4LDK
築年月
2025/7
構造
木造3階建
駐車場
2台
用途地域
第一種住居地域
建ぺい率
60%
容積率
200%
道路
西側公道5.9m
設備・仕様
電気・上下水道・都市ガス
備考
2号棟
一覧へ戻る