Skip to main content
ホーム
お知らせ
会社概要
物件情報
売土地一覧
売家情報一覧
売マンション一覧
お客様の声
無料相談・お問合せ
相場はいくら?
ホーム
お知らせ
会社概要
物件情報
お客様の声
無料相談・お問合せ
相場はいくら?
マンション一覧
Housing information
マンション一覧
Housing information
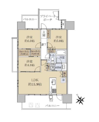
ファミリアーレ上小田井グランステージ
物件種目
マンション
物件番号
15945
建物名
ファミリアーレ上小田井グランステージ
所在地
名古屋市西区中小田井4丁目
学区
中小田井小学校/山田中学校
交通
地下鉄「上小田井」駅歩5分
価格
4,680万円
専有面積
70.29㎡
間取り
3LDK
築年月
2022/2
構造
RC10階建
所在階
5階
管理費
8,860円
修繕積立費
6,550円
総戸数
146戸
ペット飼育
可(規約有り)
備考
南西角部屋
※お問い合わせの際は物件番号をお知らせください
一覧へ戻る